
![]()
Program/ Urban Cultural Arts
Concept/ Historical Renewal
Materials/ Brick, steel, glass, wood
Location/ Grand Haven Michigan
Design Completion/ 2011
![]()
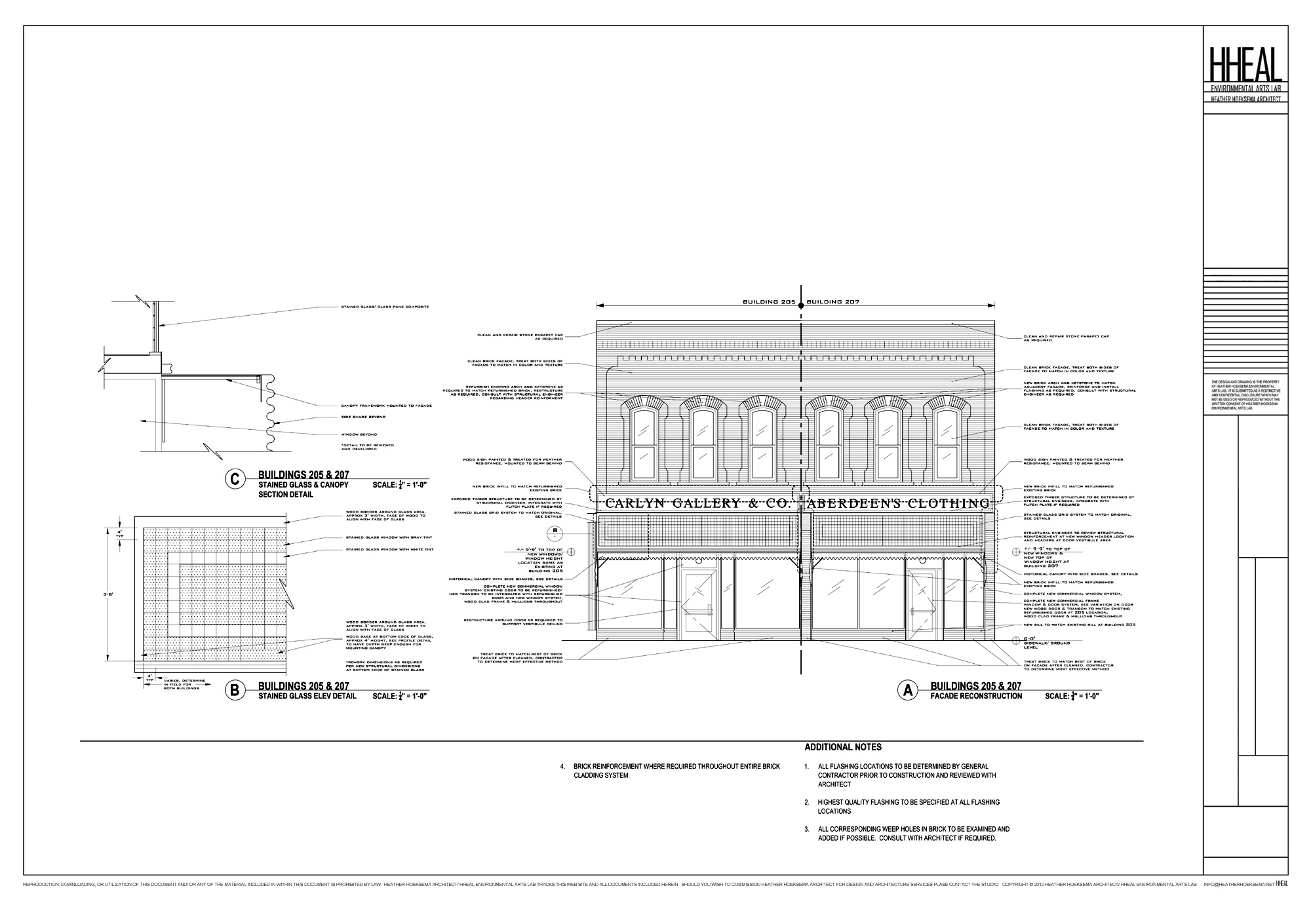
This historical facade restoration starts construction this summer in a quaint beach town in the Midwest. The restoration involves restoring the existing material qualities and replacing materials where required. New windows will replaces existing conditions to match the facade from the early 1900's. Also, this restoration will include retrofitting the entryway for wheelchair accessibility. This restoration is in tandem with a new fine art gallery moving into the interior space.
• Historical building restoration
• Building Recycling
• Arts + Architecture
• Urban scape improvement









