
![]()
Program/ New Multifamily Dwelling
Concept/ Community green design
Materials/ Stucco, wood, concrete
Location/ Los Angeles
Built/ Under Construction





![]()
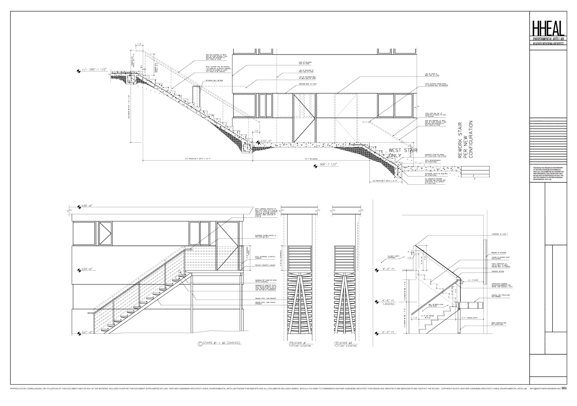
HHEAL worked as consultants to the office of Eric Lloyd Wright & Associates in the development of design and technical drawings for construction. The project is community oriented, and integrates building and landscape on steeply sloped topography in a neighborhood setting. Through thoughtfully designed architecture integrated with landscaping and existing site challenges the project engages the the habitants into gathering together and nurturing their existing culture.
• Edible gardens
• Maximized natural light
• Natural ventilation
• Alternative transportation promotion
• Hidden parking
• Interactive community spaces







