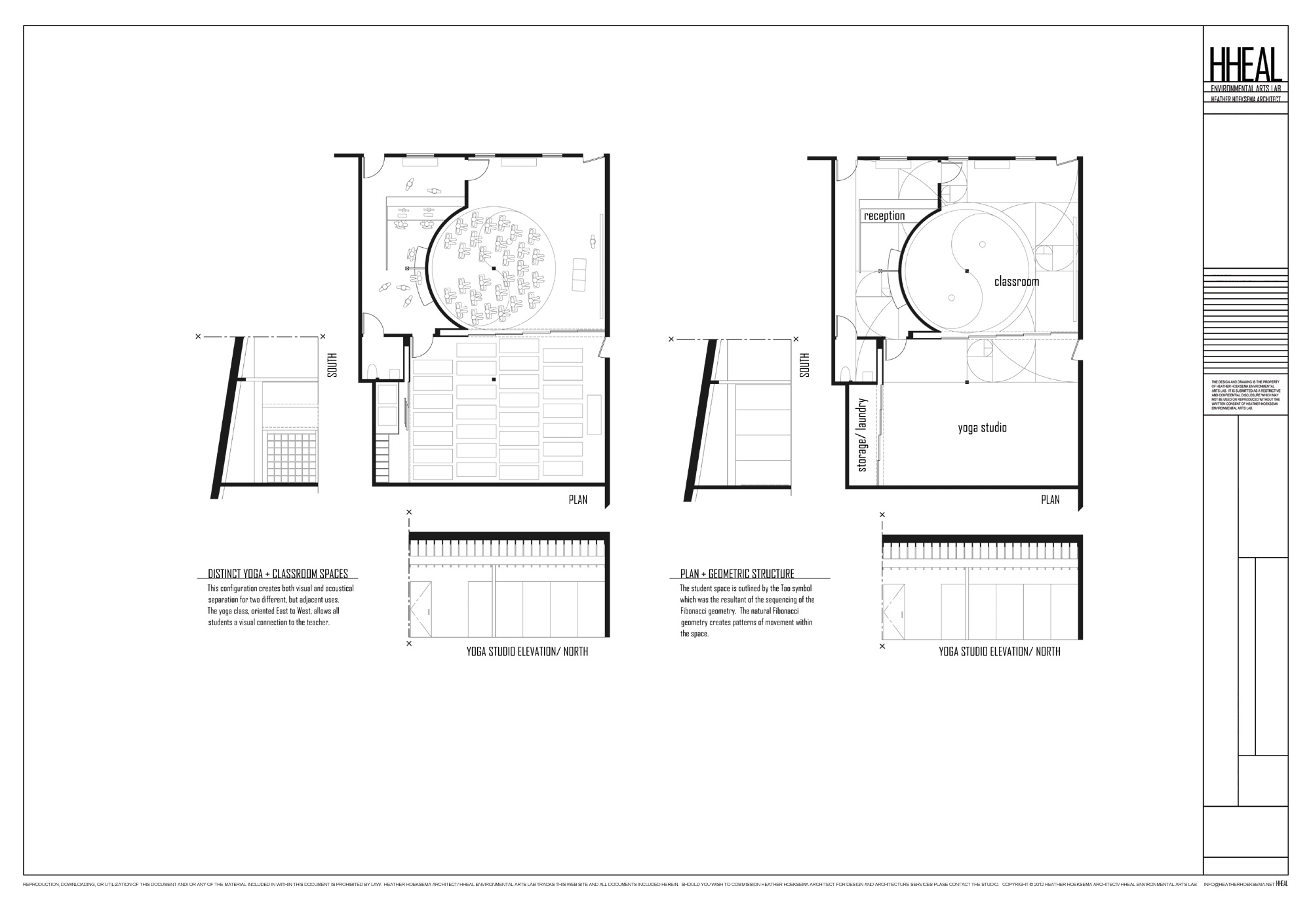
HEALING ARTS

HEALING ARTS

Program/ Healing Arts
Concept/ Interactive community space
Materials/ Wood, glass, light
Location/ Santa Monica, California
Built/ 2009



HEALING ARTS
HEALING ARTS
HEALING ARTS
HEALING ARTS